Suche schließen

Realisierungswettbewerb

Die Sieger des Realisierungswettbewerbs zum Kombibad Hirschbach stehen fest.

Ergebnis Realisierungswettbewerb

1. Preis
Lehmann Architekt GmbH BDA, D-Offenburg
Mit Jetter Landschaftsarchitekten, D-Stuttgart

1. Preis
4a Architekten, D-Stuttgart
Mit Adler&Olesch Mainz Landschaftsarchitekt, D-Mainz

3. Preis
Sacker Architekten GmbH, D-Freiburg
Mit Henne Korn Landschaftsarchitekt, D-Freiburg

Anerkennung
Architekt Fritz Planung, D-Köln
Mit Landschaftsarchitekt frei raum concept, D-Rottenburg

Anerkennung
CODE UNIQUE Architekten, D-Dresden
Mit RSP Freiraum GmbH Landschaftsarchitekt, D-Dresden

Lehmann Architekten GmbH mit Jetter Landschaftsarchitekten, Offenburg/Berlin

Kombibad Hirschbach - Präsentationsplan 1 - Lehmann Architekten
Kombibad Hirschbach - Präsentationsplan 1 (© Lehmann Architekten)
  • Integration der Gebäudevolumen in die bewegte Topografie durch niedrige Gebäudehöhe vergleichsweise geringe Gebäudelängen
  • Platzierung des rechteckigen Baukörpers mit unterschiedlicher Höhenabstufung entlang der Ostgrenze des Badgrundstücks
  • Erschließungskonzept klar und überzeugend, Ausbildung des Eingangsbereiches mit Vorplatz zur neuen Adresse im Hirschbachtal, relativ kurze Wege zu den Parkplätzen
  • Einbindung der vorhandenen Stellplätze mit Busvorfahrt in einem freiraumplanerischen Gesamtkonzept
  • An- und Zuordnung der Funktionsbereiche sehr gut gelöst, kurze Wege zu Umkleiden und Becken, gemeinsamer Kassenbereich für Hallen- und Freibad,
  • Gruppierung der Innenbecken und Positionierung Außenbecken optimal gelöst, übersichtliche Badehalle
  • kompakte Gesamtanlage, klare Zonierung der Badeplatte, geringe Hüllfläche
  • orthogonale Raster eignet sich grundsätzlich für eine Elementbauweise (Ziel Wirtschaftlichkeit und Nachhaltigkeit)
  • Optimierung der Fassadengestaltung und Materialwahl

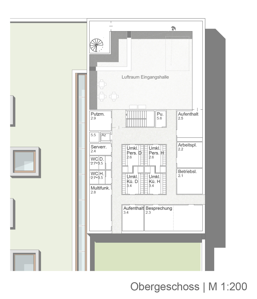
4a Architekten, Stuttgart mit Adler&Olesch Mainz Landschaftsarchitekt, Mainz

Kombibad Hirschbach - Grundriss EG - 4a Architekten
Kombibad Hirschbach - Grundriss EG (© 4a Architekten)
  • Terrassenförmiges Hanggebäude entlang der SO Grenze des Badgrundstücks
  • Erhalt der landschaftlichen Qualität des Hirschbachtals (Frischluftschneise) und des wertvollen Baumbestands
  • Aussichtslage durch begrünte Dachterrassen, die zugleich als Liegewiese dienen als Ausgleich für den Wegfall der bestehenden Liegewiese am Nordhang, in Richtung Schwäbische Alb
  • Angemessen proportionierter Vorplatz ist in direkter Nähe zu Parkplatz, gute Lage der Fahrradstellplätze und zur Bushaltestelle
  • Foyer mit Blickbeziehungen über Badehalle, Freibadplatte in die Landschaft (hohe räumliche Qualität)
  • Separater Schülerzugang über die Galerie (vom Eingang über Umkleide direkt zum Schulsportbereich), der eine störungsfreie Führung der Besucherströme ermöglicht.
  • Rückrat“ im Hang aus Umkleiden und Sanitärbereich für die innere Organisation
  • Beckenanordnung schlüssig, die Beckenumgänge sind wirtschaftlich bemessen, Kursbecken separierbar, alle Becken mit guten Tageslichtverhältnissen
  • Integration Hallenbad- und Freibadkasse beispielhaft gelöst, Gastronomie gut gelöst
  • Zur Talseite Pfosten-Riegel-Fassade, Attikabereiche mit der Cortenstahlverkleidung, wertige und nachhaltige Materialwahl
  • Freibecken nah an der Badehalle, kompakte Anordnung der Gebäude im Hang, bleibt eine große zusammenhängende Freifläche erhalten
  • begrünte Dachterrassen als zusätzliche Liegewiese über den Freibereich erreichbar
  • Sitzstufen zum Sportbecken in die Geländemodellierung eingebunden
  • Badeplatte mit differenzierter Ausgestaltung

Kurzinfo: Sacker Architekten GmbH, Freiburg mit Henne Korn Landschaftsarchitekt, Freiburg

  • In Hang geschobene, aneinandergereihte Kuben an der S-O Grenze des Badgrundstücks
  • klare städtebauliche und landschaftsräumliche Einbindung in die Talaue
  • Hirschbach wirdan die Oberfläche geholt und als blaues Erlebnisband in den Badebereich integriert.
  • Innere organisatorische Mängel: Eingangssituation im Bereich der Badehalle ist umständlich, Freibad- und Hallenbadkasse nicht integriert, getrennte Verwaltung im zweigeschossigen Riegel, Übersichtslichkeit Badehalle eingeschränkt
  • Angebot Bistro und Kasse ist räumlich zu eng gefasst
  • Logischerweise werden die Umkleiden und Nebenräume in den Hang gesteckt, erzeugen jedoch lange Wege
  • Materialität des Gebäudes ist Antwort auf das landschaftsorientierte Bauen
  • Wandscheiben in Massivbauweise aus eingefärbtem Stampfbeton, Tragwerk Halle mit Brettschichtholzbindern, Pfosten-Riegel-Fassade#

Kurzinfo: Architekt Fritz Planung, Köln mit Landschaftsarchitekt frei raum concept, Rottenburg (1002)

  • Polygonal getrennter Baukörper entlang der N-W Grenze des Badgrundstücks
  • räumlich klare Disposition gegenüber der Wohnbebauung durch L-förmige Konzentration der Baumasse an der Hirschbachstraße , allerdings verschattet Baukörper auch mit der SO Ausrichtung wesentliche Teil dieses Freizeitraums
  • Kritisch: Dimension und Materialität des Daches
  • Führung des Hirschbach außerhalb Grundstück mit Vorplatz und terrassiertem Hang
  • Sehr weite Wege Parkplatz/Eingang, weite innere Wege von Umkleiden zu Becken
  • Kassensituation mangelhaft
  • Sehr kompakte Anordnung der Freibad-Becken

Kurzinfo: CODE UNIQUE Architekten, Dresden mit RSP Freiraum GmbH Landschaftsarchitekt, Dresden

  • Rechteckiges in sich höhengestaffeltes Gebäudeensemble in den Hang eingepasst entlang SO-Grenze, Tal von Hochbauten freigehalten
  • Architektur der Schwimmhalle kontrovers diskutiert, zu wenig spezifisch für eine Schwimmbadarchitektur
  • Relativ kurze Wege Parkplatz zu Eingang
  • Führung Hirschbach über Freibadgrundstück
  • Orthogonale Bäderlandschaft Hallenbad nach SW
  • Arbeit zeigt relativ wenig Aussagen zur gestalterischen Qualität des Freiraums im Detail
  • Bereichsgliederung des Bades mit Foyer, kompakter Umkleidebereich
  • Zonierung der Badeplatte, räumlich separierbares Kursbecken

Weitere Inhalte

  • Realisierungswettbewerb